Aller à :

  • Aller à la recherche
  • Aller au menu principal
  • Aller au contenu
0
  • Accueil
  • Ventes
  • Immobilier neuf
  • estimations
  • NOTRE AGENCE
  • Alerte e-mail
  • Contact
0
  1. Agence immobilière à Pornichet et à La Baule-Escoublac
  2. Vente neuf
  3. La baule escoublac
  4. Appartement
  5. T2

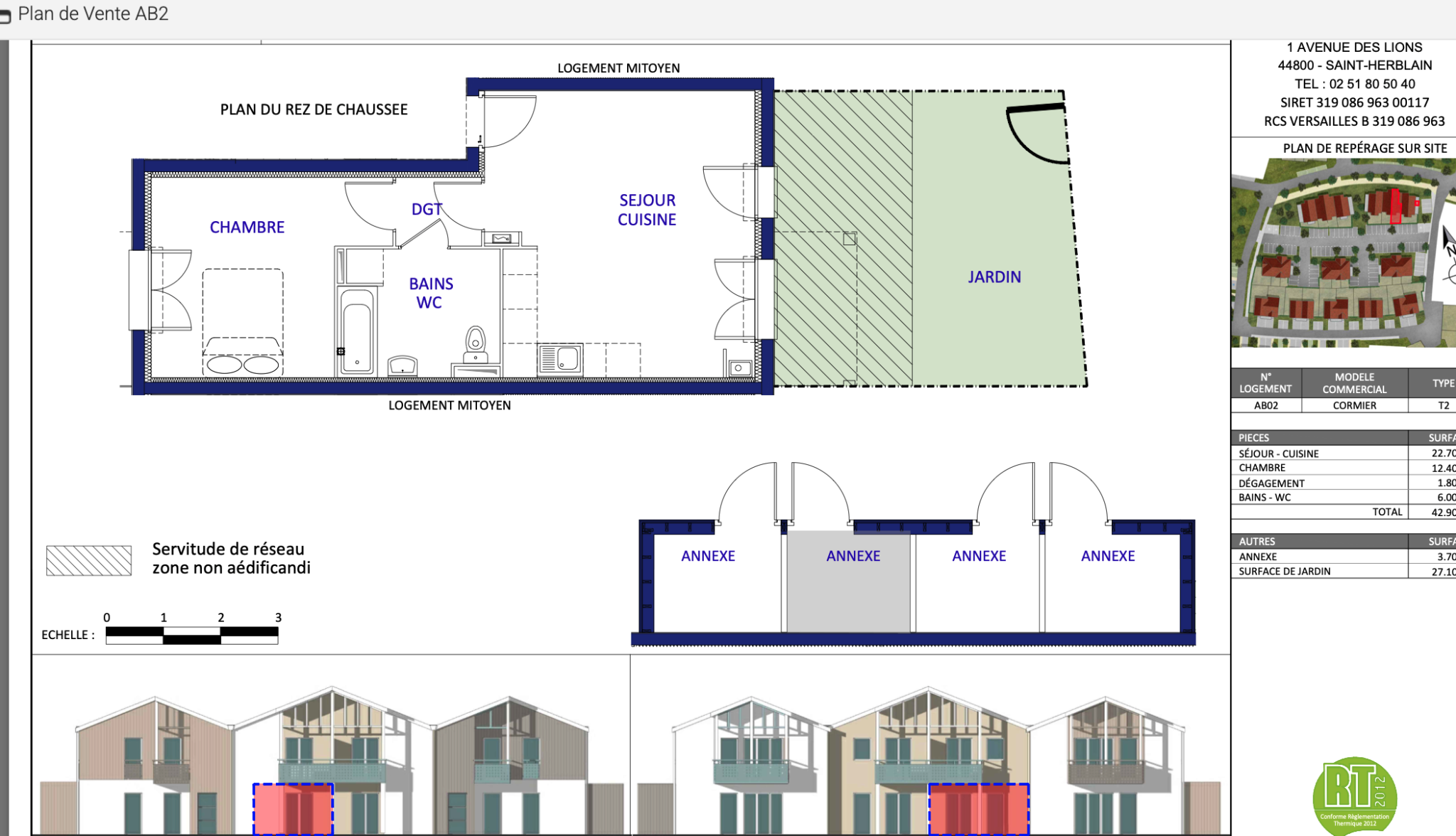
Appartement T2 rez-de-jardin La Baule Guézy La Baule-Escoublac (44500)

204 900 €
Réf : OAP10000092

Présentation

Situé dans le domaine de l’Hermione, au cœur du quartier du Guézy à La Baule, cet appartement de type 2 offre un cadre de vie paisible.

Situé en rez-de-jardin d’une petite résidence, cet appartement se compose d’une pièce de vie ouvrant sur un jardinet orienté plein sud, parfait pour profiter d’une belle lumière tout au long de la journée. Vous trouverez également une chambre, une salle de bains, et une annexe pratique pour vos rangements. Deux places de stationnement complètent ce bien.

Idéalement localisé, cet appartement bénéficie de la proximité des commerces et de la gare de Pornichet, accessibles en quelques minutes à pied.

Ce bien est une opportunité de vivre dans un environnement calme et résidentiel, tout en bénéficiant des frais de notaire réduits.

Idéal également pour les investisseurs ou 1ère acquisition.

Contactez-nous dès maintenant pour plus d’informations ou pour planifier une visite !

Le bien en vidéo

SpotVideo

Les infos
essentielles

Caractérisque Valeurs
Code postal 44500
Surface habitable (m²) 43,18 m²
Surface loi Carrez (m²) 43,18 m²
Nombre de chambre(s) 1
Nombre de pièces 2

Les + du bien

Détails +

Caractérisque Valeurs
Nb de salle de bains 1
Cuisine Sans
Murs mitoyens 2
Nombre de parking 2
Exposition Sud-Ouest
Année de construction 2026

Financier

Caractérisque Valeurs
Prix de vente 204 900 €
Les honoraires d'agence seront intégralement à la charge du vendeur  

DPE

DPE GES

Copropriété

Caractérisque Valeurs
Copropriété OUI
plan de sauvegarde NON
statut du syndic pas de procédure en cours

* champs obligatoires

Les informations recueillies sur ce formulaire sont enregistrées dans un fichier informatisé par La Boite Immo agissant comme Sous-traitant du traitement pour la gestion de la clientèle/prospects de l'Agence / du Réseau qui reste Responsable du Traitement de vos Données personnelles. La base légale du traitement repose sur l'intérêt légitime de l'Agence / du Réseau. Elles sont conservées jusqu'à demande de suppression et sont destinées à l'Agence / au Réseau. Conformément à la loi « informatique et libertés », vous disposez des droits d’accès, de rectification, d’effacement, d’opposition, de limitation et de portabilité de vos données. Vous pouvez retirer votre consentement à tout moment en contactant directement l’Agence / Le Réseau. Consultez le site https://cnil.fr/fr pour plus d’informations sur vos droits. Si vous estimez, après avoir contacté l'Agence / le Réseau, que vos droits « Informatique et Libertés » ne sont pas respectés, vous pouvez adresser une réclamation à la CNIL. Nous vous informons de l’existence de la liste d'opposition au démarchage téléphonique « Bloctel », sur laquelle vous pouvez vous inscrire ici : https://www.bloctel.gouv.fr Dans le cadre de la protection des Données personnelles, nous vous invitons à ne pas inscrire de Données sensibles dans le champ de saisie libre.
Ce site est protégé par reCAPTCHA, les Politiques de Confidentialité et les Conditions d'Utilisation de Google s'appliquent.

Nos outils
Imprimer Imprimer
Partager le bien
Calculatrice financière

* Champ obligatoire

Partager l'annonce

* champs obligatoires

Les informations recueillies sur ce formulaire sont enregistrées dans un fichier informatisé par La Boite Immo agissant comme Sous-traitant du traitement pour la gestion de la clientèle/prospects de l'Agence / du Réseau qui reste Responsable du Traitement de vos Données personnelles. La base légale du traitement repose sur l'intérêt légitime de l'Agence / du Réseau. Elles sont conservées jusqu'à demande de suppression et sont destinées à l'Agence / au Réseau. Conformément à la loi « informatique et libertés », vous disposez des droits d’accès, de rectification, d’effacement, d’opposition, de limitation et de portabilité de vos données. Vous pouvez retirer votre consentement à tout moment en contactant directement l’Agence / Le Réseau. Consultez le site https://cnil.fr/fr pour plus d’informations sur vos droits. Si vous estimez, après avoir contacté l'Agence / le Réseau, que vos droits « Informatique et Libertés » ne sont pas respectés, vous pouvez adresser une réclamation à la CNIL. Nous vous informons de l’existence de la liste d'opposition au démarchage téléphonique « Bloctel », sur laquelle vous pouvez vous inscrire ici : https://www.bloctel.gouv.fr Dans le cadre de la protection des Données personnelles, nous vous invitons à ne pas inscrire de Données sensibles dans le champ de saisie libre.
Ce site est protégé par reCAPTCHA, les Politiques de Confidentialité et les Conditions d'Utilisation de Google s'appliquent.

Partager avec vos proches

Facebook Facebook
Messenger Messenger
Twitter Twitter
WhatsApp WhatsApp
LinkedIn LinkedIn
Copier le lien Copier le lien
Détail des diagnostics énergétiques
DPE GES
DPE vierge
Autres biens

Ces biens peuvent aussi vous intéresser

Appartement

Appartement T2 Domaine de l'Hermione - La Baule Guézy

La Baule-Escoublac (44500)
Prix en baisse
Voir le bien
Appartement

Programme neuf GUEZY La Baule - Domaine de l'Hermione

La Baule-Escoublac (44500)
Voir le bien

© 2026 | Tous droits réservés | Traduction powered by Google |

  • Nos honoraires
  • Plan du site
  • Mentions légales
  • Admin
  • Nos liens
  • Politique RGPD
  • LinkedIn

Comme beaucoup, notre site utilise les cookies

On aimerait vous accompagner pendant votre visite. En poursuivant, vous acceptez l'utilisation des cookies par ce site, afin de vous proposer des contenus adaptés et réaliser des statistiques !

Paramétrer

Statistiques de visites

Pour améliorer votre expérience, on a besoin de savoir ce qui vous intéresse !
Les données récoltées sont anonymisées.

?

Google Analytics

requis
?

Google Tag Mananger

requis
Cookies optionnels

Ces cookies sont déposés par des prestataires afin d'identifier des produits ou services que vous consultez.

Avis client

?

Opinion System

En savoir plus

Faites estimer votre bien par un professionnel

Estimer votre bien